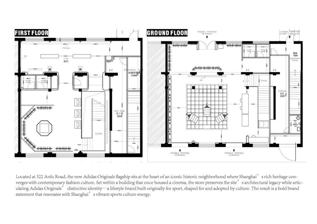
Located at 322 Anfu Road, the new Adidas Originals flagship sits at the heart of an iconic historic neighborhood where Shanghai’s rich heritage converges with contemporary fashion culture. Set within a building that once housed a cinema, the store preserves the site’s architectural legacy while articulating Adidas Originals’ distinctive identity—a lifestyle brand built originally for sport, shaped for and adopted by culture. The result is a bold brand statement that resonates with Shanghai’s vibrant sports culture energy.
Global Future Design Awards 2026: Entries Open! Take your work to the next level. Register Now…

Gold 🏆 Winner
Global Future Design Awards 2025
Adidas Originals Flagship Store, Shanghai
Retail Interior (Built)
Firm
TOMO DESIGN, TO ACC
Architect/Designer
Uno Chan
Design Team
Chief Designers: Uno Chan, Xiao Fei; Cooperative Design: Linus, Psyun, Sirry, Jason
Location
Shanghai, China
Country
China
Photographer/Copyright
©Free Will Photography
Social Media Handles:
Website
N/A






I. Innovation & Creativity
Space as Storyteller:
By preserving exposed raw walls and steel structures, the architecture itself ‘speaks,’ becoming a vessel of brand storytelling. Stepping inside feels less like entering a retail store, more like walking through a compressed narrative of urban evolution and a resonant hub of urban sports culture, redefining retail from a product-centric display to an immersive culture encounter.
Customized Social Touchpoints:
Innovative features such as a “Made For You” zone and kinetic installations—most notably the app-controlled automated arms on the ground floor which can be flexibly adapted to different setups—create intentional touchpoints for interaction and social sharing. This fosters a self-sustaining loop of “physical immersion, digital amplification, and a fresh wave of visitors,” reshaping retail dynamics.
Subtle Hints to Local Culture:
The project creatively translates the geometric lines and traditional materiality of Shanghai’s historic architecture into the spatial language. Locally inspired designs, such as the Trefoil-patterned textured glass, tactile terrazzo flooring, and automated display arms referencing traditional louvers, activate the site’s historical genes. Bridging the brand’s urban sports culture vitality with local heritage, the project sets a new benchmark for how global brands engage with local identity.
II. Functionality
Immersion Meets Individuality:
The store embraces a flexible display system, adaptable to diverse visual merchandising and event needs. The ground floor features an interactive display zone and a “MADE FOR YOU” customization area, catering to young consumers’ growing desire for personalized service.
III. Eco-social Impact
The project has preserved the original structures, such as the facade and interior beams, demonstrating an effective low-carbon strategy. It maximizes the efficiency of existing resources, and minimizes the use of new materials—embodying the principles of “reduction” and “reuse.”
Since opening, the new Adidas Originals flagship store has quickly emerged as a sports fashion landmark, energizing the historic neighborhood. By seamlessly blending heritage, urban sports culture, and technology, it fosters collective convergence, strengthens community identity, and exemplifies how historical preservation and commercial innovation can thrive together, demonstrating that a brand can genuinely become an integral part of a city’s vibrant cultural fabric.
Follow us on

