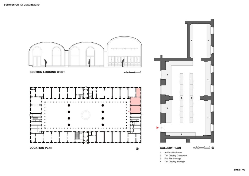
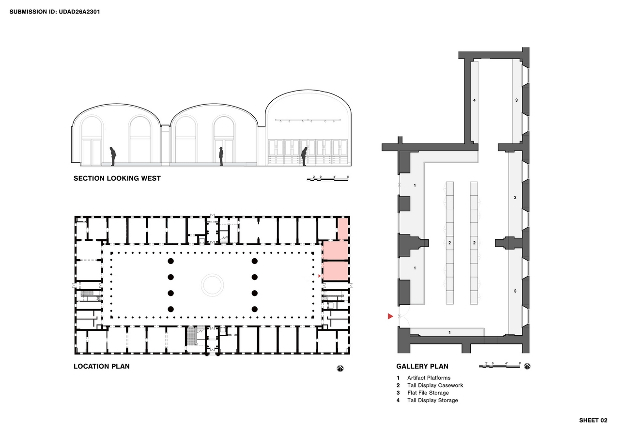
Visible Vault transforms traditional museum storage into an interactive, publicly accessible gallery, displaying more than 5,000 artifacts. The gallery incorporates rotating objects from the collection to highlight current events, content-specific themes, and new acquisitions. The strategy for open storage integrates object security, enabling informal educational opportunities and structured teaching moments without requiring collections staff to be present. Designed to offer visitors, scholars, and staff unprecedented access to the National Building Museum’s 3D collections, this open storage concept redefines how the museum can educate the public about the complexity of the building industry. The gallery blends learning, accessibility, and community engagement.
Urban Design & Architecture Design Awards 2027: Entries Open!
Take your work to the next level. Register Now…

Gold 🏆 Winner
Urban Design & Architecture Design Awards 2026
Visible Vault, The National Building Museum
Exhibition Interior Design (Built)
Firm
Studio Joseph
Architect/Designer
Wendy Joseph
Design Team
Wendy Evans Joseph, Partner-in-charge Monica Coghlan, Partner Jose Luis Vidalon, Partner Felipe Colin Jr., Designer Xingyao Wang, Designer Brandon Studer, Graphic Designer
Location
National Building Museum 401 F St NW, Washington, DC 20001
Country
United States
Photographer/Copyright
©Photography Credits: Stephen A. Miller for Gallery, Elman Studio for Graphic Other Credits: All renderings and drawings by Studio Joseph





Design Goals
Visible Vault enables the museum to fulfill its strategic goal of increasing accessibility and diversity in its collection while intentionally and proactively engaging the public in this endeavor. When the museum was founded by an act of Congress in 1980, it did not have a collection of artifacts. However, over the past four decades, this collection has grown to include over 500,000 objects, including a 3D collection of tools, models, works on paper, drawings, and photographs. These items advance the museum’s mission to inspire curiosity about the built environment and provide tangible reminders of the building blocks that inspired us as children, the tools and materials that create our shelters, the designs of our monuments, and souvenirs purchased to further our collective memory.
Design Strategy
The layout maximizes display areas while providing full accessibility. Given a modest budget, the strategy was to fabricate vitrines rather than to buy proprietary systems. These full-height units offer greater transparency than available systems and are easily accommodate a wide range of object sizes, including heavy or oversized pieces. Along the perimeter file drawers are filled with material samples for visitors to explore on their own.
A reduced palette of white and soft gray throughout is a soft backdrop to the vast array of archival items on display. Materials include oak floors and platforms, metal rails, and glass enclosures. All labels and graphics are large-scale for those with low vision, and digital access to additional information is available.
Project Impact
Visible Vault has become a destination for museum visitors of all ages and backgrounds. As a place that caters to a playful glance, a deep dive into details, or a treasure chest of the unexpected, this gallery sparks the public imagination. The museum finds that increased interaction with the collections also encourages visitors to add their own stories and information about the artifacts, buildings, and materials featured in the collection.
Open storage is especially effective for school groups, as they can view artifacts without special access or the presence of a collections staff member. There is a playful sense of discovery. Pragmatically, Visible Vault has enabled the museum to move 25% of the 3D collection from other storage areas that were at capacity, freeing over 1,000SF of shelving for acquisitions. Visible Vault’s open storage cases are used to present temporary installations aligned with events, holidays, or museum outreach.

