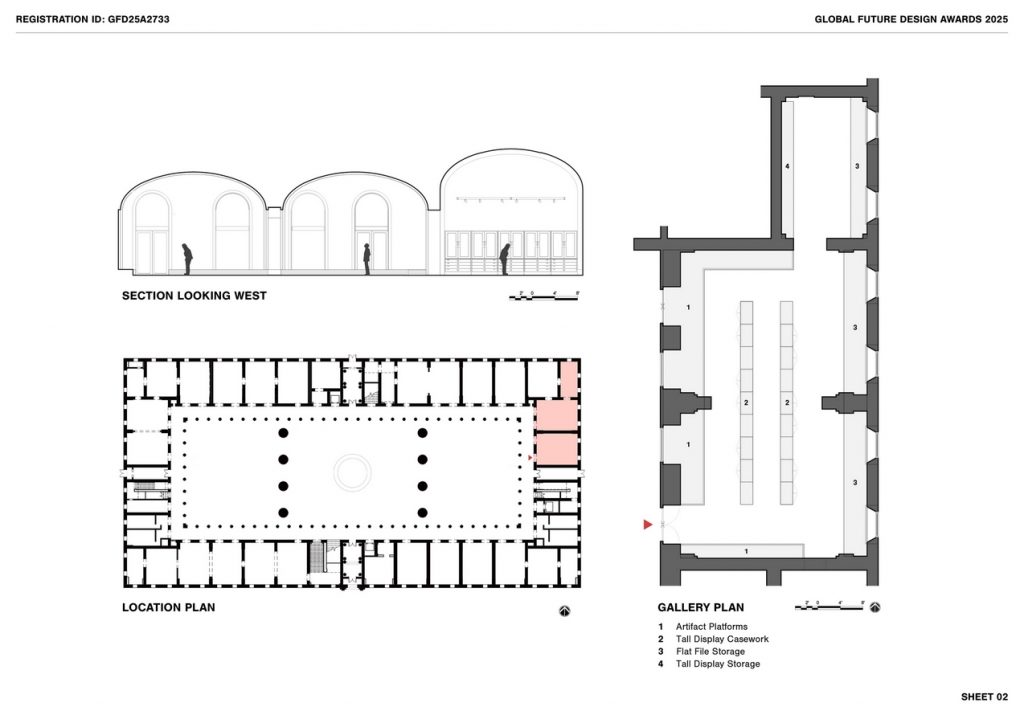
Visible Vault displays over 5000 objects representing the extent and diversity of the National Building Museum’s collection. Yet, it is not traditional museum storage but an interactive, publicly accessible gallery that encourages playful exploration and learning. The collections are displayed in glass cases, on platforms, wall-mounted, and in drawers. Each of these strategies is secure to protect and conserve the artifacts while being accessible, as here the emphasis is on community engagement and fostering educational opportunities. The organization offers structured tours, class trips, and targeted outreach. It highlights new acquisitions and hosts seasonal events. Local and destination tourists, scholars, and children have unprecedented access, as the presentation is both straightforward and artful, providing multiple points of entry and redefining what the building industry has to offer.
Global Future Design Awards 2026: Entries Open! Take your work to the next level. Register Now…

Gold 🏆 Winner
Global Future Design Awards 2025
National Building Museum, Visible Storage
Interior Design (Built)
Firm
Studio Joseph
Architect/Designer
Wendy Joseph
Design Team
Wendy Evans Joseph, Partner-in-charge Monica Coghlan, Partner Jose Luis Vidalon, Partner Felipe Colin Jr., Designer Xingyao Wang, Designer Brandon Studer, Graphic designer Architects on Project: Wendy Evans Joseph, Principal
Location
401 F Street, NW, Washington, DC. 20001
Country
United States
Photographer/Copyright
©National Building Museum and Stephen A. Miller
Website
N/A
Instagram
N/A
Facebook
N/A
Whatsapp
N/A






A fundamental part of the NBM’s mission is to increase access to its diverse collection, engaging both professionals and the public. Although the museum had no archive when it was founded in 1980, its collection has grown to over 350,000 objects, including tools, toys, architectural models, works on paper, photographs, ephemera, and historical building fragments. These artifacts inspire curiosity about the built environment, connecting visitors to the tools that build homes, the designs of monuments, and the souvenirs that shape our collective memory.
The layout maximizes display space, ensuring efficient and fully accessible circulation. Custom-designed vitrines were locally fabricated, offering greater transparency and flexibility at a lower cost than proprietary systems. They are easily adjusted for diverse, oversized, and heavy items. A white and gray palette serves as a neutral backdrop, enhancing the visibility of items on display on pedestals, in cases, or in drawers. The design features wood floors, safety rails, and enclosures with labels and graphics accommodating low-vision accessibility. Additional information is available through digital access points.
Outside the gallery, the dark gray wall has a playful environmental super graphic facing the Great Hall. This enhances the fun quality of the museum and overall wayfinding. The drawings are of elements on display.
Results: Visible Vault quickly became a popular destination as children were as excited about the technical equipment as they were about the toys. But it also attracts adults, the design community, and tourists. The gallery houses approximately 25% of the NBM’s 3D collection, freeing over 1,000 square feet of shelving for new acquisitions in closed conservation storage. Attendance for Visible Vault is more than twice what was anticipated and continues to increase. The curators have presented the project at museum conferences, and there is strong interest on the part of other institutions for the project.
Follow us on
Instagram: @architecture.pressrelease
Facebook: @APRarchitecturepressrelease
LinkedIn: https://www.linkedin.com/feed/
YouTube: @aprawards

