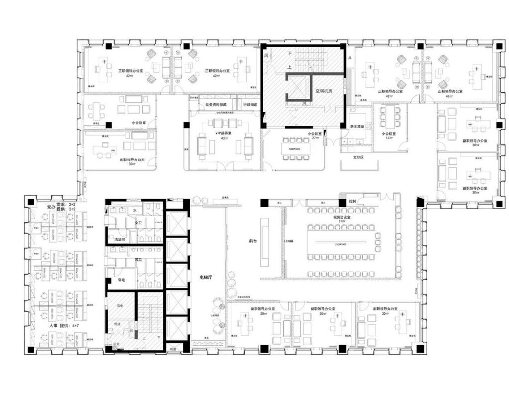
The project is located in the office building in Shanghai, and the enterprise has fixed standards on function, personnel, style, and independent space area, so the designer has made in-depth research and consideration on “physical attribute, psychological appeal, architectural structure, sense of space” and other aspects in the plane layout. In the space design, with a simple form of expression, outline the diversified space of interest, giving the space new spirit and vitality.
Winner – International Interior Design Awards 2020
Firm | HWCD
Designer | HWCD
Project Category | Office Building Interior Concept
Project Team | LIN HONGJUN,LUO LEI
Country | China
Photographer/Copyright | ©HWCD

Abandoning the stiff sense of traditional office space, the minimalist design language is used to create a light space context, and the pursuit of a balance between science and fashion, square atmosphere, but not lose sensibility and wisdom, symbolizing a yearning and pursuit for the future.
From the form of space, composition and functional layout, do a deeper level of extension. The soft and beautiful arc, from the perspective of sensibility and rationality, expresses the space emotion deeply and delicately, with both hardness and softness, so that the artistic value of the clever can be perfectly expressed.
Design not only starts from function and beauty, but also coexists with material and spirit. Each independent space has its unique temperament, to consider the maximum of mutual blend and continuity, but also to grasp the dynamic and static balance of open and independent space.










