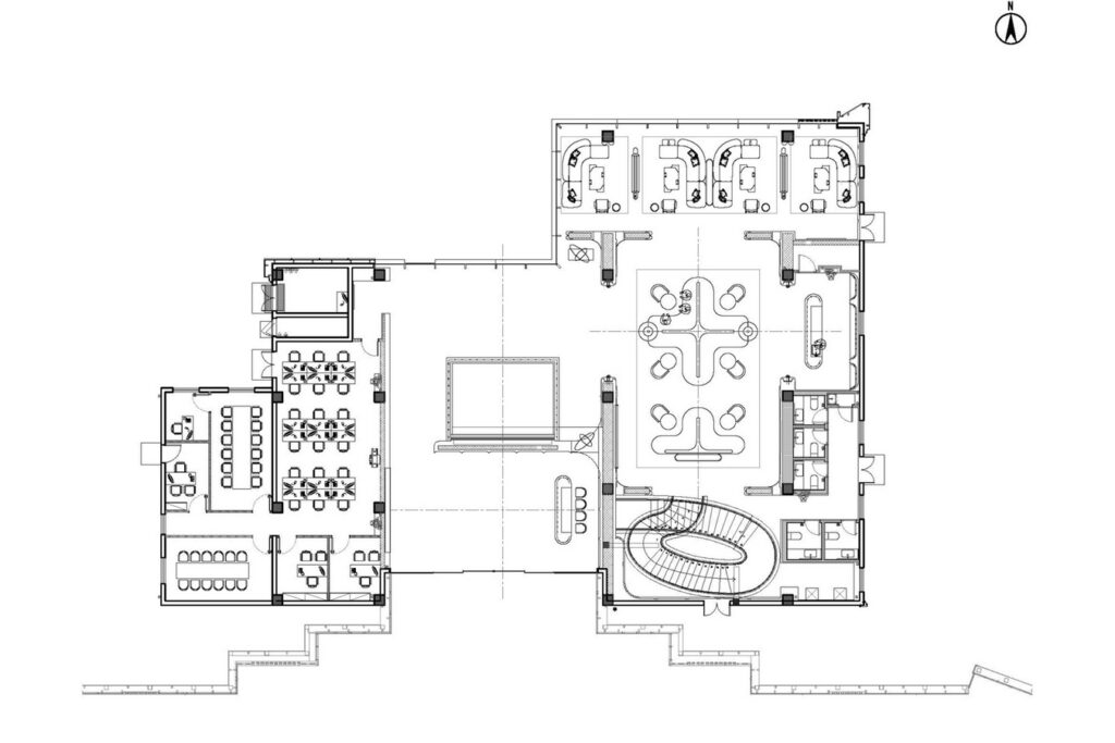
This project is located in the core area of the Hongqiao Business District in Shanghai, carrying an international and open perspective. It outlines the luxury environment quality with exquisite craftsmanship, integrates urban temperament and Shanghai style culture, and carves Eastern aesthetics with luxury stones and famous wood, creating an era of Eastern elegance and luxury.
International Interior Design Awards 2024: Entries Open!
Take your work to the next level. Register Now…
Gold 🏆 Winner
International Interior Design Awards 2023
CLOUD PALACE SHANGHAI
Commercial and Office Interior Built
Firm
WJID
Designer
WJID
Design Team
WJID
Location
Shanghai City, China
Country
China
Photographer/Copyright
©HAHA LU
WJID conforms to the urban texture, using the design genes of the Shanghai style East to condense urban memories, integrating the artistic essence of Shanghai style aesthetics with modern and elegant aesthetics, and outlining the eastern elegant environment in a modern form, constructing a continuous and graceful diverse scene, creating a spiritual prelude to a future city.







