A holiday house for a professional couple in a Pacific Ocean beach resort about 1.25 hrs drive north of Auckland, New Zealand’s largest city.
Urban Design & Architecture Design Awards 2018
Honorable Mention | Category: Housing
Architects: Frans Kamermans
Studio Name: Kamermans Architects Ltd
Country: New Zealand
Website: www.kamermans.co.nz

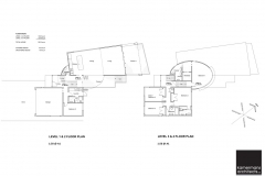
At later stage it may become their main residence. Different funcMons in the house were given their own shape & cladding, resulMng in a sculptural composiMon:

- Stained Mmber “wedge”: Open plan living, dining, kitchen and decks, elevated above ground and directed at the sea view.
- Colorsteel “oval”: Master bedroom with en-suite and dressing room, a lookout quite separate from the rest of the house.
- Plastered “cube”: Guest bedrooms, bathrooms, garage and laundry.

Kamermans Architects also did the interior design which included a custom designed furniture range, as well as the landscape design of a ‘naMve dune’ style garden.


