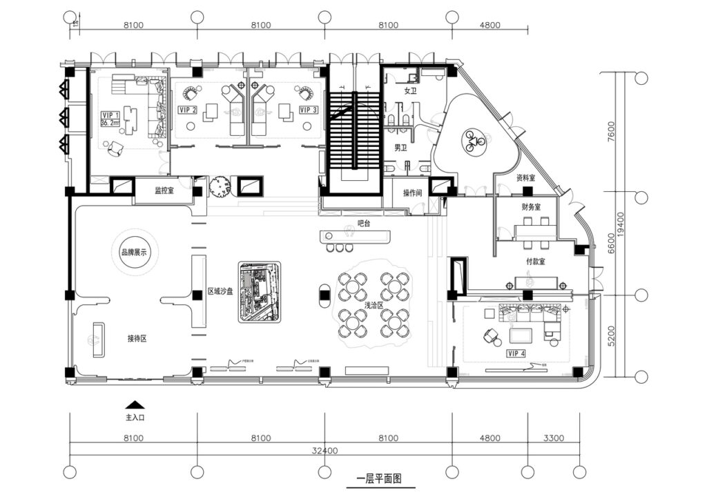
The eye of time links Tianjin to the world, the gateway to Mei River, and opens a journey of time in the city of Tianjin. Tianjin Zhonghai Mei River sales office showcases the concept and attitude of Zhonghai Fengjing and strives to be a leader in living space and experience. In the pure architectural space, with the combination of regional culture, the hotel’s temperament and style, to create a refined and noble spatial style, rebuild the city and brand impression, upgrade and create a Mei River Collection of culture, experience, enjoy, a museum of Art. In Mei River, the spire leads the imagination, constructs a new social circle of life, establishes the image of the home of the high-end pioneer community awareness, and forms a unique influence and aggregation effect.
International Interior Design Awards 2024: Entries Open!
Take your work to the next level. Register Now…
Gold 🏆 Winner
International Interior Design Awards 2023
MEIJIANG PIONEER
Commercial Interior Built
Firm
Beijing Shan He Jin Yuan Art Design Co. , Ltd.
Designer
Beijing Shan He Jin Yuan Art Design Co. , Ltd.
Design Team
Weina Zhong, Xiaoyue Cao
Location
Tianjing City, China
Country
China
Photographer/Copyright
©JIAN ZHU Studio







