INVENTOR SCHOOL is an unusual school, its feature is a progressive approach to provide knowledge through practice, discussions, communication, experiments.
Our task was to build a creative and modern space that would inspire and shape creative personality.
Interior Design Awards 2022: Discounted Entries Open Now! Save $50
Super Early Discount – 20th January 2022 to 31st March 2022 – $199 = $149
Gold 🏆 Winner
International Interior Design Awards 2021
Inventor School
Public Building Interior Built
Firm
KYB Architects
Designer
Oleksii Kutsalo
Design Team
Oleksii Kutsalo, Oleksandr Bilotskyi, Vladyslav Koshma, Karyna Shynkarenko, Yuliia Omelianets
Location
Kyiv, Ukraine
Country
Ukraine
Photographer/Copyright
©Yevhenii Deshko
The school consists of three floors: underground and 2 above-ground floors, each of them has its own thematic content, which corresponds to the general concept of space.
You can go down to the underground floor by stairs that mimic the surface of Mars. Due to the texture of the surface, we`ve created the visual illusion of the space flow, using the lighting to emphasize its infinity. This floor consists mainly of administrative premises, and we designed them to reproduce the station of the spacecraft.
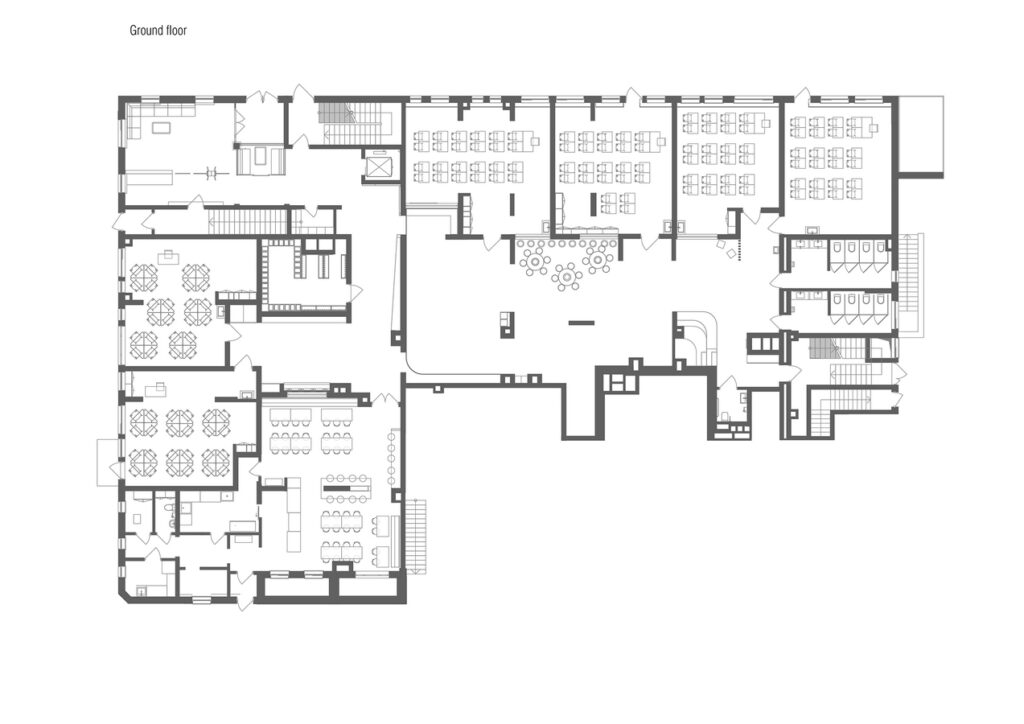
The ground floor includes an entrance, game zones, dining, and study areas. The entrance area is a communication space, it is made in light tones and serves as a place to start something new. Instead, the entrance to the underground floor is highlighted – it looks like a gear – a portal to another dimension. The play areas are situated in different places and have different functions: entertainment, education, communication and, respectively, have different designs. The dining area has the largest decorative lamp, made in the shape of a flying saucer, hovering over the dining table. The design of educational premises is made according to the purpose of the room. The idea of the design of the stairs leading to the second floor was inspired by the work of Piet Mondrian.
The interior of each floor complements and reveals the idea of the universe, naturally making it interesting for children and encouraging the conquest of unknown horizons.
Registrations open… Don’t miss the opportunity to win with your visionary projects.














